Willkommen in Ihrem neuen Zuhause – einem hochwertig erstellten Einfamilienhaus, das modernen Wohnkomfort mit einem harmonischen, familienfreundlichen Ambiente vereint. Dieses frisch fertiggestellte EFH überzeugt nicht nur durch seine energieeffiziente Ausstattung mit Photovoltaikanlage und moderner Luft-Wasser-Wärmepumpe, sondern auch durch eine Atmosphäre, in der Sie und Ihr Kind sich vom ersten Moment an wohlfühlen werden.
Im Erdgeschoss empfängt Sie ein einladendes Entree, das direkt in den lichtdurchfluteten Wohn- und Essbereich mit offener Küche übergeht. Die Kochinsel bildet das Herzstück des Hauses – ideal, um gemeinsam zu kochen, Gäste zu empfangen oder den Alltag gemütlich ausklingen zu lassen. Der direkte Zugang zum sonnigen Westgarten bringt ein Gefühl von Freiheit und Weite. Hier können Sie laue Sommerabende geniessen, grillieren oder Ihrem Kind einen geschützten Spielbereich bieten. Die seitlich angelegte Hecke bietet dabei angenehme Privatsphäre. Ein zusätzlicher Raum im Erdgeschoss eignet sich perfekt als Homeoffice oder gemütliches Gästezimmer. Abgerundet wird das Geschoss durch ein elegantes WC mit Lavabo und Spiegelschrank.
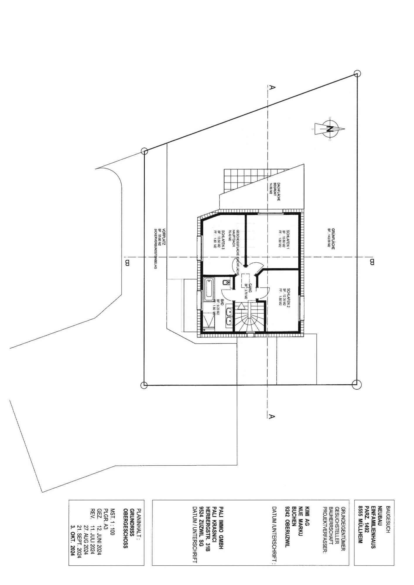
Im Obergeschoss erwarten Sie drei charmante Zimmer – ideal für ein Paar mit kleinem Kind oder als Kombination aus Schlaf-, Kinder- und Hobbyzimmer. Die durchgehenden Keramikplatten verleihen dem gesamten Wohnbereich eine moderne, pflegeleichte Eleganz. Das grosszügige Badezimmer mit Whirlpool-Wanne und separater Dusche bietet Ihnen eine persönliche Wellnessoase, ideal zum Entspannen nach einem langen Tag.
Im Untergeschoss finden Sie neben dem gefliesten Technikraum und einem praktischen Waschraum mit Waschturm-Anschluss auch einen geräumigen Disponibelraum. Dieser bietet vielfältige Nutzungsmöglichkeiten – ob als Fitnessraum, Hobbybereich oder zusätzlicher Stauraum.
Der Außenbereich überzeugt mit einer Garage sowie zwei zusätzlichen Parkplätzen direkt vor dem Haus – komfortabel und alltagstauglich.
Dieses Haus ist wie geschaffen für Paare oder junge Familien, die Wert auf Qualität, Stil und harmonisches Wohnen legen. Hier finden Sie einen Ort, an dem Sie ankommen, sich entfalten und langfristig zuhause fühlen können.
Preise
- Kaufpreis
- CHF 1'180'000
Kategorie
- Objektart
- Haus
- Objekttyp
- Einfamilienhaus
- Nutzungsart
- Wohnen
- Vermarktungsart
- Kauf
Geografische Angaben
- PLZ
- 8555
- Ort
- Müllheim Dorf
- Land
- Schweiz
- Strasse
- Bahnhofstrasse
- Hausnummer
- 39
- Aussicht
- Ferne
Flächen
- Wohnfläche
- 120 m²
- Grundstücksgröße
- 327 m²
- Anzahl Zimmer
- 5
- Anzahl Badezimmer
- 1
- Anzahl Duschen
- 1
- Anzahl Badewanne
- 1
- Anzahl WC
- 2
Ausstattung
Geschirrspülmaschine
ruhig
sonnig
- Boden
- Steinböden
- Heizungsart
- Wärmepumpe
- Herd
- Glaskeramikherd
- Stellplatzart
- Garage, Stellplatz im Freien
Technische Angaben
- externe Objnr
- GC664
Beschreibung
Lage
Müllheim liegt im Thurtal in der Nähe des Autobahndreiecks Grüneck der Autobahn A7. Die Nähe zum Bodensee und eine malerische Landschaft machen den Aufenthalt abseits des grossen Touristenstroms so reizvoll. Als aufstrebende Gemeinde bildet Müllheim eine Art Zentrum im Thurtal zwischen den beiden Städten Frauenfeld und Weinfelden.
Die umliegenden Gemeinden sind Wigoltingen, Amlikon-Bissegg, Hüttlingen, Pfyn und Homburg.
Das neu erstellte EFH mit PV Anlage liegt südlich am Dorfrand Richtung Bahnhof Müllheim-Wigoltingen. In wenigen Minuten sind Sie im Coop, Migros, Volg, Banken, Bäckerei, Drogerie, Metzger oder beim Hauswarenladen. Dies gilt ebenfalls für die Schulen vom Kindergarten bis Oberstufe! Ebenso befindet sich ein Ärztezentrum und ein Zahnarzt im Dorf.
Das Postauto verbindet im Halbstundentakt Richtung Frauenfeld. Der Bahnhof Müllheim-Wigoltingen befindet sich 1.2 Km südlich vom Dorf mit Halbstundentakt. In 45 Autominuten sind Sie in Zürich oder am Flughafen! Die Steuern sind in etwa vergleichbar mit der Stadt Zürich.
Weitere Infos unter: www.muellheim.ch
Die umliegenden Gemeinden sind Wigoltingen, Amlikon-Bissegg, Hüttlingen, Pfyn und Homburg.
Das neu erstellte EFH mit PV Anlage liegt südlich am Dorfrand Richtung Bahnhof Müllheim-Wigoltingen. In wenigen Minuten sind Sie im Coop, Migros, Volg, Banken, Bäckerei, Drogerie, Metzger oder beim Hauswarenladen. Dies gilt ebenfalls für die Schulen vom Kindergarten bis Oberstufe! Ebenso befindet sich ein Ärztezentrum und ein Zahnarzt im Dorf.
Das Postauto verbindet im Halbstundentakt Richtung Frauenfeld. Der Bahnhof Müllheim-Wigoltingen befindet sich 1.2 Km südlich vom Dorf mit Halbstundentakt. In 45 Autominuten sind Sie in Zürich oder am Flughafen! Die Steuern sind in etwa vergleichbar mit der Stadt Zürich.
Weitere Infos unter: www.muellheim.ch
Neubau, Wohnen Nähe Bahnhof und Zentrum am südlichen Dorfrand
Bahnhofstrasse 39
8555 Müllheim Dorf
Schweiz
Ihr Ansprechpartner
Herr Stefan Hanselmann
DreamCasa GmbH
- Tel.:
- 052 721 85 50
- Mobile:
- 079 705 60 57
- E-Mail:
- s.hanselmann@dreamcasa.ch
Zürcherstrasse 275
8500 Frauenfeld